资讯
历经政企一体向市场主体转型,至今基本已完成全面市场化运营,在自贡高新区由省级
升到国家级高新区的开发建设中作出了突出贡献
自贡科技创新中心转型升级工程
栏杆制作及安装工程第三次招标
招 标 文 件
日 期:2019年12月30 日
自贡科技创新中心转型升级工程栏杆
制作及安装工程第三次招标文件
招标编号:HD20200102-1号
自贡科技创新中心转型升级工程位于 自贡市板仓工业园区 ,现将该项目栏杆制作及安装工程进行第三次招标,具体招标内容如下:
一、报价须知
1、工程名称:自贡科技创新中心转型升级工程栏杆制作及安装工程
2、建设地点:自贡市板仓工业园区南岸科技新区E10-02地块
3、建设规模:护窗栏杆约 6000 米
楼梯栏杆约 950 米
金属靠墙扶手约 70 米
钢楼梯制作安装约3.502T
4、承包方式:包工包料
5、质量标准:合格(按照国家有关规定)
6、招标范围:自贡科技创新中心转型升级工程栏杆制作及安装以图纸和技术要求为准。
7、资金来源:自筹
8、工期要求:以甲方通知进场时间为准。
9、安全生产与文明施工
(1)承包方按文明工地的要求组织安排施工,达到自贡市安全文明施工标准。承包方必须主动接受发包方管理,并按照发包方要求做好:工人入场教育,安全、技术交底、编制好施工专项方案、应急救援与处置预案等工作。
(2)承包方应重视施工安全,由于承包方安全监督管理不到位,安全教育不到位,安全技术措施不力或不到位,违章操作、无证上岗操作和其他违反安全管理相关规定等原因造成的一切安全生产事故(包括第三方人员责任事故),由承包方全部承担法律责任和经济赔偿。
10、工程报价方式:
护窗栏杆控制价190.75元/m(含税9%)
楼梯栏杆控制价225.63元/m(含税9%)
金属靠墙扶手控制价71.94元/m(含税9%)
钢楼梯制作安装32700元(含税9%)
根据甲方提供的栏杆技术要求及图纸采取以每延长米单价包干的方式( 元/延长米),报下浮比例,单价最低者中标。报价包括预埋件、材料采购、场内运输、安装、后塞口填补,管理费、利润、税金、临时施工水电及与土建总包单位衔接等的所有费用,并按要求做好相关资料。
11、投标人资质及要求
(1)施工企业经营范围应具备相关内容。
(2)施工企业须有相应施工能力匹配的人员、设备、资金。
12、投标保证金、合同履约保证金
(1)投标保证金金额:人民币5万元(大写:人民币伍万元),投标人于2020年1月6日17时30分前转账到招标人指定账户。开标后,中标人的投标保证金转为合同履约保证金,未中标人的投标保证金在开标后7日内无息退还。投标保证金缴纳账号:
开户行:工商银行大安支行
账户名:四川自贡汇东发展股份有限公司
账号:2303304119201024782
请在备注栏注明投标工程名称
(2)合同履约保证金在工程竣工验收合格后7日内中标人无息退还。
13、付款方式及时间:
(1)工程没有预付款,按完成产值(经审核)的80%支付进度款,工程竣工验收并办理结算后30日内付至结算金额的90%,待保修期(一年)满后付至95%(不计利息),余款审计后一次性付清(不计利息)。
(2)付款时,提供9%的增值税专用发票。
14、结算方式:工程量按相关规定按实收方结算,单价按投标人中标单价以每延长米单价包干执行。
15、材料规格、品种及质量要求:实际施工的与招标文件规定要求一致,并提供出厂证明、合格证书、质检书、3C认证等。楼梯栏杆水平段需保够≥1150mm,斜段需保够≥950mm。
16、违约责任:若中标方未能在约定工期内完工,则每超出约定工期一天,扣罚 1000 元作为违约金,累加计算,不超过合同金额10%。
17、投标文件的组成:
(1)投标报价表
(2)商务标部分包括:①法定代表人身份证复印件;②授权委托书;③企业资质复印件、④营业执照复印件、⑤安全生产许可证复印件、⑥代理人身份证原件及复印件(所有复印件加盖投标单位公章)。
18、报名时间:请于2020年1月2日至2020年1 月6日上午09:00至12:00时,下午14:30至16:30时(北京时间,下同),在自贡市高新区板仓孵化大楼301室报名,将企业营业执照副本、资质证书副本、安全生产许可证、法人身份证、法人委托书、代理人身份证原件及复印件、投标保证金收据复印件(复印件加盖投标单位公章)交到自贡市高新区板仓孵化大楼301室张斌处,经我司考察、评审合格后方能参加此次招标。
联系人: 张斌
联系电话: 0813-8258359 13550753249
19、投标文件提交地点及截止时间
(1)地点:南湖逸都售楼部2楼会议室
(2)截止时间: 2020年 1月7日16:00止
20、开标时间: 2020 年 1 月 7 日16:00 止(与投标文件提交截止时间同一时刻,特殊情况除外)
21、评标方法及标准:经评审的合理低价中标,不能少于两次报价。
22、施工图获取方式:工程项目部,陶强13440013022。
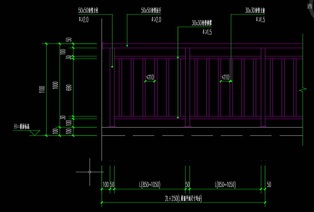
附图:靠墙扶手参见西南18J412(60页②),楼梯栏杆参见西南18J412(57页③),金属扶手参见西南18J412(68页1d).护窗栏杆见下图。
护窗栏杆
二、合同签定时间:收到中标通知书后七日内。
附件1:
授权委托书
本人 (姓名)系 (投标人名称)的法定代表人,现委托本单位人员 (姓名)为我方代理人。代理人根据授权,以我方名义签署、澄清、说明、补正、递交、撤回、修改 (项目名称)施工投标文件、签订合同和处理有关事宜(向有关行政监督部门投诉另行授权),其法律后果由我方承担。
代理人无转委托权。
附:(1)法定代表人身份证复印件。
(2)委托代理人身份证复印件。
投标人: (盖单位章)
法定代表人: (签字)
委托代理人: (签字)
联系电话: (固定电话) (移动电话)
年 月 日
注:(1)法定代表人不亲自投标而委托代理人投标适用。
(2)委托代理人在递交投标文件时,应携带委托代理人身份证原件。
附件2:
投标人报价表
项目名称:自贡市科技创新中心转型升级工程栏杆制作及安装工程
(栏杆制作及安装工程第三次招标)
本报价为控制价下浮比例
第一轮:下浮
第二轮:下浮
第三轮:下浮
最终:下浮
投标人:
法定代表人或其委托代理人: (签章)
年 月 日